Dokumenty do pobrania

Znajdź wszystkie potrzebne formularze i dokumenty

Formularze aplikacyjne

Wnioski i formularze potrzebne do dołączenia do Inkubatora

Wniosek osoby fizycznej

o przyjęcie do Inkubatora Przedsiębiorczości Krosno

DOCX

Wniosek przedsiębiorcy

o przyjęcie do Inkubatora Przedsiębiorczości Krosno wraz z Załącznikami

DOCX
2.1 MB Pobierz

Wniosek o przedłużenie okresu inkubacji

Dla obecnych inkubowanych przedsiębiorców

DOCX
2 MB Pobierz

Formularz zgłoszeniowy - wirtualne biuro

Dla usługi wirtualnego biura

DOCX
1.9 MB Pobierz

Regulaminy i cenniki

Dokumenty prawne i informacje o cenach usług

Regulamin Inkubatora Przedsiębiorczości Krosno

Obowiązuje od 8 lipca 2024

PDF
0.7 MB Pobierz

Cennik Usług Inkubatora Przedsiębiorczości Krosno

Obowiązuje od 1 kwietnia 2025

PDF
0.2 MB Pobierz

Rzuty pomieszczeń

Plany architektoniczne przestrzeni Inkubatora

Rzut parteru - biura

Plan pomieszczeń biurowych na parterze

PDF
0.3 MB Pobierz

Rzut parteru - pomieszczenia produkcyjne

Plan pomieszczeń produkcyjnych na parterze

AVIF
0.3 MB Pobierz

Rzut piętra I - biura

Plan pomieszczeń biurowych na pierwszym piętrze

AVIF
0.3 MB Pobierz

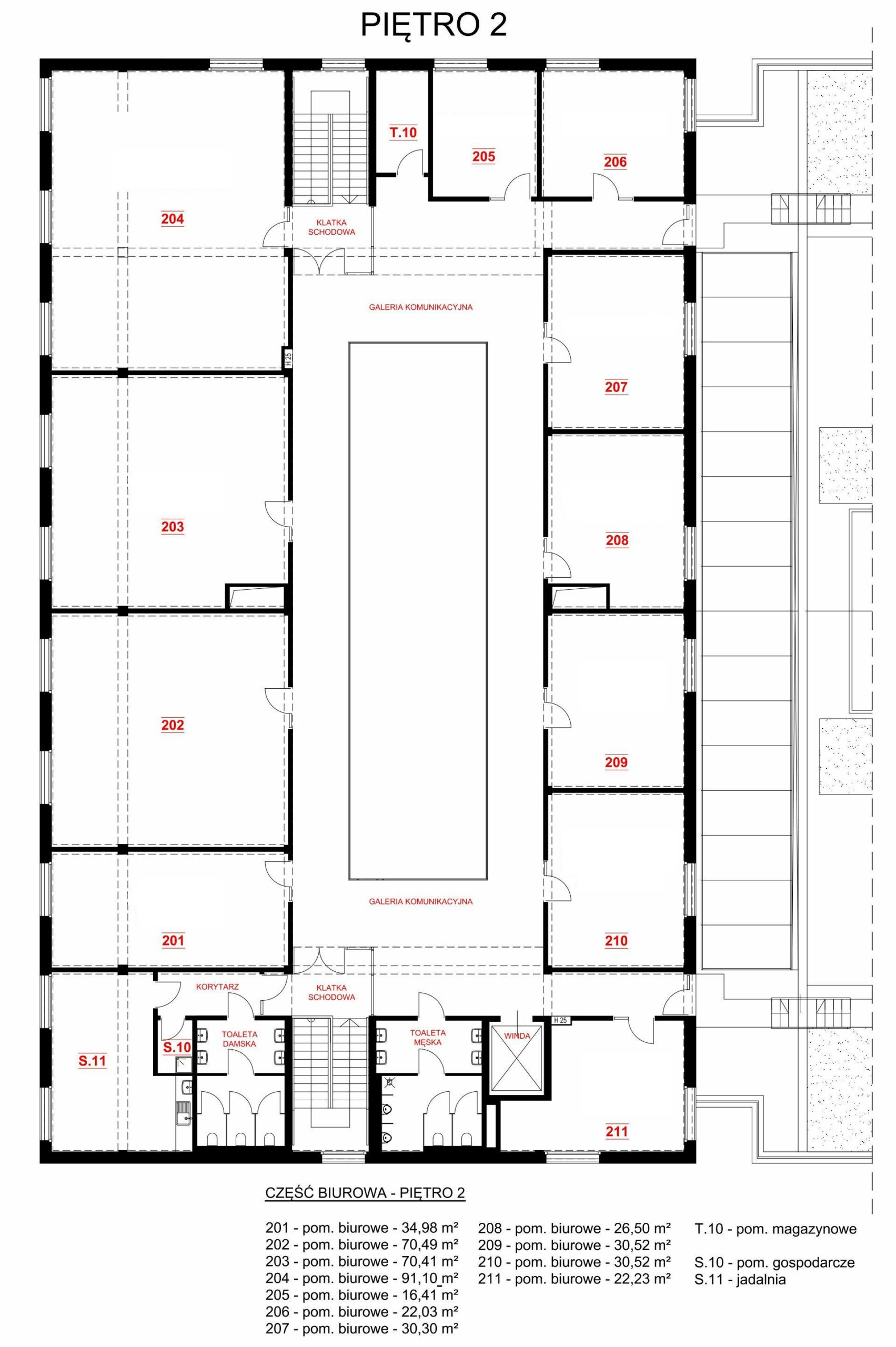
Rzut piętra II - biura

Plan pomieszczeń biurowych na drugim piętrze

AVIF
0.3 MB Pobierz

Potrzebujesz pomocy?

Skontaktuj się z nami, jeśli masz pytania dotyczące dokumentów

Skontaktuj się z nami